ぜひ一度見ていただきたい、「仲池上の家」です。
きれい好きな方など幅広い層の方にお勧めの新築戸建て物件で清々しい新生活を。
プライバシーを守る独立タイプの間取りで、開口部豊富で明るいリビングが非常に魅力的です。
大田区周辺で不動産をお求めなら、地域に詳しい当社にお任せ下さい。
新生活を快適にスタートできるよう、しっかりとサポートいたします。
当社ではあなたの頼れる不動産探しのパートナーになれるよう、不動産情報を豊富に取り扱っております。
ぜひご検討ください。
1.価格について
新築戸建て「仲池上の家」の販売価格は5,950万円です。
土地の価格の公的指標である国土交通省の公示地価で大田区をみると、大田区大森北3丁目の2021年は46万円/m2で前年比-0.1万円/m2となりました。
ここ30年ほどの不動産動向を振り返ると、1990年代のバブル崩壊以降に土地価格が下げ続けたものの、2010年に底打ちに。
全国的にはまだ地価は下げ続けていますが、2012年12月の安倍政権誕生で「アベノミクス・異次元金融緩和」により投資マネーが土地に向かい価格を押し上げ、東京都などは反転上昇しています。
そのため、大田区でも2014年から2020年までは7年連続で地価が上昇しています。
しかし、2021年はコロナ禍の影響でマイナスになっていますが、三大都市圏では0.7%下落している中、大田区の下落率は0.1%未満であり、それほど大きな影響は受けていないといえます。
したがって、不動産の売買の観点においても、大田区は東京都23区内でも非常に人気の高いエリアです。
大田区の不動産の特徴は、東京都23区全域のトレンドと比べ、築年数が経過しても資産価値が低下しにくい点にあります。
長期間住む場合でも資産価値が落ちにくく、売却時のリスクが低めのエリアと言えます。
2.立地について
大田区西馬込の住みやすさは一言でいうと「始発電車が魅力的な街」です。
都営浅草線「西馬込駅」は、始発・終着駅であるため、混雑する朝でも割と快適な通勤・通学ができるのが魅力です。
JR山手線が使える「五反田駅」まで乗り換えなしで約8分で行けるので、1回乗り換えれば都内のどこにでも行きやすいです。
「西馬込」は、昔からある住宅街で古くから住んでいる人も多く、年齢層も高めです。そのため、落ち着いた雰囲気の静かな暮らしが叶い、ファミリー層にもおすすめのエリアです。
「西馬込」がファミリー層にとって住みやすい点としては、子どもを見守る「地域の目」があることが挙げられます。「西馬込」は、幅広い年齢層が住む住宅街です。そして、その中でも古くからの住宅街の中に、小中学校が点在しています。そのため、小中学校に通う子どもたちの親を始め、地域の目がしっかりと行き届いた地域なのです。親としては、こうした「地域一丸となって子どもを見守る環境」が整っているため、安心して子育てができます。
また、「西馬込」は、日頃の買い物をするときにもとても便利なエリアです。駅の近くにはスーパーが3店舗のみとなりますが、どのスーパーも朝早くから深夜まで営業しています。仕事帰りで遅くなったときでも、買い物がしやすいのです。また、駅から少し離れれば、スーパーの数はたくさんあります。さらに、それらのスーパーでは店舗間の競争があるため、商品の物価が安めに設定されているのです。食べ盛りの子どもがいるファミリー層にとっては、とてもありがたい環境です。
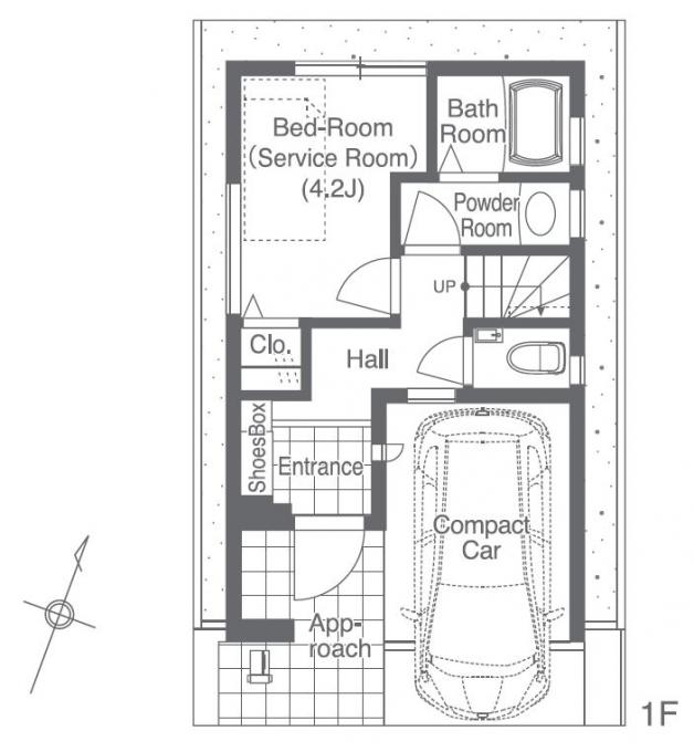
3.間取りについて



木造三階建の構造となっており、目的に応じてフロアごとに使い方をわけ、それぞれのスペースを独立させることができる間取りとなっています。
全居室に収納スペースが確保されており、家全体の収納スペースは非常に大きいと言えます。冬もの衣類の収納や、クリスマスツリーなどの大型グッズの収納も十分に可能で、家全体がスッキリした印象になります。
4.設備について



室内にはオリジナルシステムキッチン、追い炊き機能付きオートバス、浴室換気乾燥機、温水洗浄便座などの充実した設備を完備しており、快適な暮らしをサポートしています。
リビングの壁材にはエコカラットプラスを使用しており、すぐれた調湿性能で快適な湿度が保たれます。結露を抑え、カビやダニの繁殖の抑制も期待でき、洗濯物の部屋干しにもおすすめです。
また、木造建物用制振装置「ダイナコンティ」が設置されており、建物の揺れの「大きさ」だけではなく、揺れの「速さ」にもブレーキをかけることができるため、建物の中にいると体感震度が軽減されます。加えて、建物の傾きを抑えられ、損傷被害が20%~40%程軽減されます。地震大国として知られる日本において、地震が来ても安心して住める構造は非常に魅力的であると言えます。
5.住宅ローンのシミュレーション
返済期間を35年、金利を2%、借入金額を全額(頭金なし)とした場合の住宅ローンのシミュレーション結果は、毎月197,101円の返済額となります。
上記のシミュレーションは一例であり、当社では住宅ローンの専門家に相談できます。
「住宅ローンはいくら借りられるの?」「月々の返済額をいくらにしたい!」「変動金利か固定金利のどちらが良いのだろう?」など、資金計画で疑問や悩み等ございましたら、是非ご相談下さい。
住宅ローンの専門知識をもったスタッフが、現在の金利情勢やお借入銀行の特徴からお客様に合った住宅ローンの組み方をご提案いたします。
また、住宅ローンだけでなく、ライフプランの検討・固定費の見直し・投資などもご相談も可能ですので、お気軽にご相談ください。
6.まとめ
大田区で不動産を購入するなら、静かで落ち着いた生活が送れる「西馬込駅」周辺がおすすめです。
当社は地域密着型で、確かな情報をご提供しているので、ご安心してお任せ下さい。
不動産のご購入を検討しているが不動産の知識がなくて不安だと思う方でも、経験豊富な当社スタッフがしっかりとサポートするので、ご安心してご依頼下さい。













